
Lieux : 66, 68 et 70 rue Louis Blanc – 69006 Lyon
68 rue Tronchet – 69006 Lyon
6,8,10 et 12 rue Laurent Vibert – 69006 Lyon
Date : Décembre 2017 à Octobre 2022 / Février 2023 à Septembre 2024.
Maitre d’ouvrage : Batigère Rhône-Alpes
Equipe de Maitrise d’œuvre :
Axe Architecture
BET Fluides : Matté
Economiste : Indico
Programme : Réhabilitation de 90 logements en site occupé sur 3 sites distincts
Surfaces : 4 650m² de SDP
4 293m² de Shab
Coût : 5 719 000 € HT
Spécificités techniques : ITE, Réhabilitation conséquente, site occupé, requalification des cours intérieures.
Mission : Etat des lieux + Diagnostic + Base + Det + Visa
Certifications : Rt Elément par élément, aides et bonus Ecoreno’v
Crédit images : GCC Aureca! et Axe Architecture
Jamais Deux sans Trois …
Dans le cadre de la réhabilitation thermique ambitieuse de trois opérations situées à proximité immédiate entre-elles, entre le quartier de la Part-Dieu et le parc de la Tête d’or au cœur du 6e arrondissement de Lyon, Batigère a pu mutualiser la même équipe de maîtrise d’œuvre et le choix d’une seule entreprise générale : GCC Aureca!
Construits au début du XXe siècle à l’initiative de Félix Mangini, ingénieur pionnier dans les chemins de fer et philanthrope lyonnais, ces bâtiments de logements économiques pour les travailleurs et qui sont entrés dans le parc social de Batigère aux débuts des années 2000.
La première résidence de 33 logements, située aux 66, 68 et 70 rue Louis Blanc, a été livrée en novembre 2023. La seconde, commencée en janvier 2024 et terminée fin juillet 2024, située aux 6, 8, 10 et 12 rue Laurent Vibert, comprend 38 logements réhabilités ; enfin la troisième résidence a été achevée fin septembre 2024 au 68 rue Tronchet, et a permis la réhabilitation lourde de 19 logements.
A l’issue de ces travaux, les logement sont devenus conventionnés, offrant à 90 foyers un logement de qualité, à prix abordable, dans un secteur très prisé de Lyon.
Ce chantier, réalisé en site occupé, a nécessité de prévoir le relogement provisoire des locataires durant les travaux dans leurs appartements.
Avant cette campagne de réhabilitation, ces logements devenus vétustes, étaient classés en étiquette énergétique G. Aussi des travaux importants étaient nécessaires et à l’issue du chantier, les résidences sont requalifiées en étiquette C. Pour cela, il a fallu en passer par la rénovation complète des pièces humides ; la réfection des réseaux d’alimentation et d’évacuation ; la mise en place un système de chauffage et ventilation efficients et la mise en sécurité électrique.
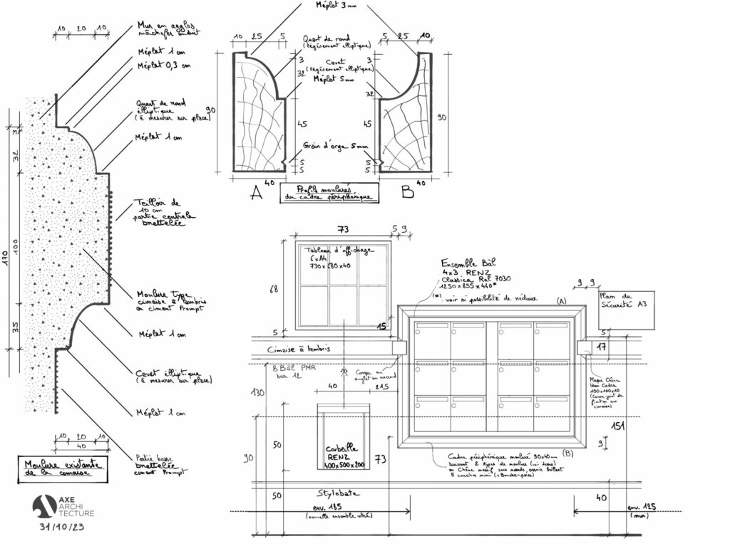
Les enveloppes des bâtiments n’ont pas été oubliées et participent fortement à la réhabilitation énergétique, grâce à la révision des couvertures, l’isolation thermique des combles et du plafond des caves. L’isolation thermique extérieure et/ou intérieure des façades mise en place afin de conserver et/ou restituer au mieux les éléments de modénature des façades qui font la richesse du patrimoine Mangini.
Des menuiseries extérieures bois double vitrage ont été posées avec des brise-soleil orientables (BSO) en remplacement des jalousies bois détériorées ou manquantes.
Toutes les cours intérieures ont été requalifiées pour accueillir de nouvelles fonctionnalités (abris bacs O.M. et zones vélos) tout en augmentant les surfaces végétalisées infiltrantes.











